Tapa de montaje 350 para unidades de montaje tamaño nominal 4

Código 7400506 | EAN 4012197483661

7400506 / DUG 350 V4
Cuadrado
Descripción de producto
Descripción de producto
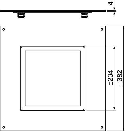
Tapa adaptadora para cajas de derivación y de registro del tipo UZD350-3 y UZD350-4 para montar una unidad de montaje. Abertura de montaje a 3 mm de profundidad para poder cerrarla posteriormente con una tapa ciega.
  • Verband der Elektrotechnik, Elektronik, Informationstechnik e.V., Deutschland (Asociación de Electrotécnicos Alemanes)
  • Comunidad Europea, Declaración de conformidad según las directivas de la CE
Datos técnicos

Datos técnicos

Abertura de montaje Cuadrado
Adecuado para canalización bajo pavimento
Adecuado para canalización cerrada a ras de pavimento no
Altura 4 mm
Ancho 383 mm
Ancho de canal máx. 350 mm
Ancho de canal mín. 190 mm
Cuidados del suelo seco
Dimensión 383x383x26
Grosor del material 4 mm
Longitud 383 mm
Material Acero
Medida a 234 mm
Medida A 383 mm
Modelo para carga pesada no
Orificio para la instalación de caja sobre el pavimento no
Posibilidad de instalar una junta no
Superficie Galvanizado en banda
Tamaño nominal 350 mm
Tamaño nominal para unidades portamecanismos 4
Tapa abertura de montaje no
Todos los tipos

Todos los tipos

Tipo Abertura de montaje Código Cantidad Mín. ud. de venta
DUG 350 V4 Cuadrado 7400506
1 Unidad
Descargas

No hay textos informativos disponibles para este producto